PDFMANUALEXPERTS
John Deere 5055E, 5065E, 5075E Tractor Service Manual TM901019 Operation & Maintenance PDF Complete Guide
John Deere 5055E, 5065E, 5075E Tractor Service Manual TM901019 Operation & Maintenance PDF Complete Guide
Couldn't load pickup availability
Complete 5055E 5065E 5075E Tractor Service Manual TM901019 PDF
The John Deere TM901019 Service Manual is the complete operation and maintenance guide for the 5055E 5065E and 5075E utility tractors This downloadable PDF covers essential service procedures periodic maintenance schedules engine servicing diagnostics electrical repairs and safety instructions.
Ideal for both professional mechanics and tractor owners this manual provides accurate step by step procedures to ensure proper performance and long equipment life.
Applicable Models:
5055E, 5065E, 5075E Tractor
Manual Number: TM901019
Detailed Contents:
Foreword General Safety General Specifications General References Diagnostic Trouble Codes CCU Code Diagnostics ICC Code Diagnostics PTR Code Diagnostics Observable Symptoms Engines Fuel and Air Electrical Control Units PowrReverser™ Transmissions Drive Systems Steering and Brakes Hydraulics Operator Station System Diagnosis Starting, Charging and Start Aid PowrReverser™ Transmission Differential Lock MFWD PTO Steering Rear Brakes Rear SCV System Diagnosis Mid-Mount Control Valve System Diagnosis Rear Hitch System Diagnosis Air Conditioning Engines General Information Tests and Adjustments Engine System Theory of Operation Fuel and Air General Information Fuel and Air Theory of Operation Electrical System Fuse/Relay Block Tests and Adjustments Theory of Operation Functional Schematics (Cab) Functional Schematics (OOS) Connector Information Control Units General References Tests and Adjustments CCU ICC PTR PowrReverser™ Transmission General Information Preliminary and Operational Checks Tests and Adjustments Theory of Operation Schematics and Diagrams TSS Transmission Tests and Adjustments Theory of Operation Schematics and Diagrams Drive Systems General Information Preliminary and Operational Checks Tests and Adjustments Theory of Operation Schematics and Diagrams Steering and Brakes General Information Preliminary and Operational Checks Test and Adjustments Theory of Operation Hydraulics General Information Preliminary and Operational Checks Tests and Adjustments Theory of Operation Operator's Station General Information Preliminary and Operational Checks Tests and Adjustments Theory of Operation Service Tools Dealer-Fabricated Tools Service Tools and Kits
Key Features of Our Manuals:
Pages: 1178
Downloadable PDF format for easy and secure offline access
Written in clear and simple English for better understanding
Includes detailed diagrams and illustrations for quick reference
Designed for users of all skill levels, from beginner to expert
Access – Download available after purchase
Reliable customer support available 24/7 for any assistance
Compatible with all major devices including Windows, Mac, iOS, and Android
Best For:
Farmers and landowners
Tractor service technicians
Workshop repair teams
John Deere equipment owners
Agricultural maintenance professionals
Why Choose Us?
Genuine John Deere OEM content
Detailed servicing and operation procedures
Secure download
Trusted by agricultural professionals
Support included with every purchase
Frequently Asked Questions (FAQs)
Q1: What is the format of this manual?
A: This manual is in PDF format, making it easy to read on phones, tablets, laptops, and desktops. No special software needed.
Q2: Is this the official John Deere manual?
A: Yes, this is the official Service manual published by John Deere under the document number TM901019.
Q3: What’s the difference between an operator’s manual and a service manual?
A: An operator’s manual focuses on daily use, maintenance, safety, and basic troubleshooting. A service manual includes advanced repair procedures and diagnostics.
Q4: Can I print this manual?
A: Yes, the PDF is fully printable. You can print the entire manual or specific pages as needed.
Q5: Does it include wiring diagrams?
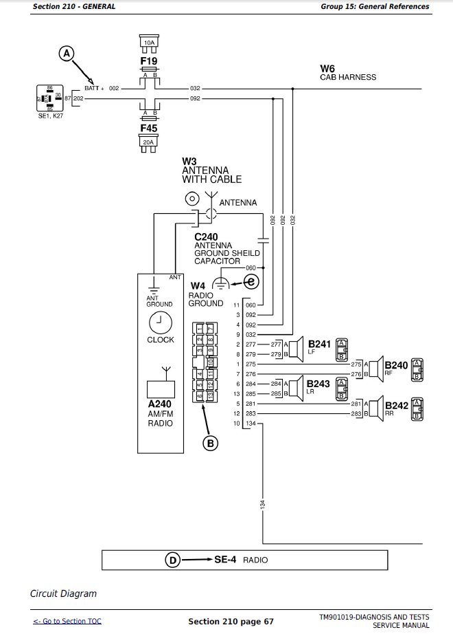
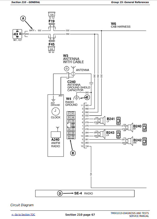
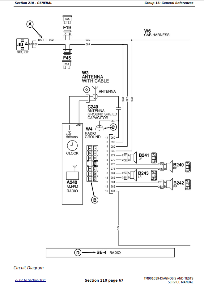
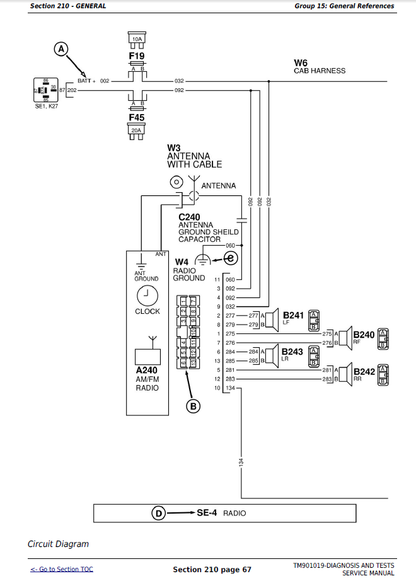
A: While this manual includes basic electrical system overviews, detailed wiring diagrams are usually found in the technical or service manual.
Q6: Will this work on my mobile phone?
A: Absolutely! It works on iOS and Android phones as well as tablets and computers.
Final Note:
Get the confidence to Service your John Deere 5055E, 5065E, 5075E Tractor with ease. This digital PDF Service manual gives you everything you need to run your machine safely and efficiently. Whether you’re managing a small farm or working on landscaping projects, this manual is your daily operations companion.
Buy now and get access – your equipment deserves it.
Share


